00132264_0
Jalouzieklep variant JZ-HL

Jalouziekleppen met servomotor

00133336_0
Contraroterende lamellen


00132264_0
00133336_0

JZ-HL

Voor het luchtdicht afsluiten van luchttechnische installaties

Jalouziekleppen in rechthoekige uitvoering voor luchthoeveelheids- en drukinregeling en het luchtdicht sluiten van luchtkanalen en openingen in wanden en vloeren.

  • Maximale afmetingen 2000 × 1995 mm
  • Lekkage bij gesloten jalouzieklep volgens EN 1751, afhankelijk van grootte klasse 1 – 2
  • Lekkage van behuizing volgens EN 1751, klasse C
  • Contraroterende aerodynamisch gevormde lamellen
  • Lamellen gekoppeld met buitenliggende stangenstelsel
  • Naast de standaard afmetingen ook tussenliggende afmetingen verkrijgbaar


Optionele uitrusting en toebehoren

  • Servomotor: open-dicht aandrijving, proportionele aandrijving
  • Ex-uitvoering met pneumatische aandrijving of veerretourmotor
  • Gepoedercoate uitvoering

Toepassing

Toepassing

  • Jalouziekleppen serie JZ-HL voor luchthoeveelheids- en drukinregeling in luchtbehandelingsinstallaties
  • Voor luchtdichte afsluiting van luchtleidingen en openingen in wanden en plafonds
  • Gepoedercoate uitvoering voor verhoogde weerstand tegen corrosie
  • Voor toepassing in ruimten met explosiegevaar (ATEX). Uitvoeringen met messing of RVS bussen.

Speciale kenmerken

  • Aerodynamisch gevormde lamellen
  • Onderhoudsarm en robuuste constructie
  • Geen siliconen bevattende componenten
  • Naast de standaard afmetingen ook tussenliggende afmetingen verkrijgbaar

Classificering

Lekkage bij gesloten jalouzieklep volgens EN 1751

Testdruk tot 2000 Pa

  • Tot B = 599 mm, Klasse 1
  • Vanaf B = 600 mm, Klasse 2

Nominale grootten

  • B: 200 – 2000 mm in stappen van 1 mm
  • Breedte gedeeld (BM) : 2001 – 4150 mm in stappen van 1 mm
  • H: 180, 345, 510, 675, 840, 1005, 1170, 1335, 1500, 1665, 1830, 1995 mm (Tussenmaten 183 – 1998 in stappen van 1 mm, behalve standaard maat H – 1 mm, H + 1 mm, H + 2 mm)
  • Hoogte gedeeld (HM): 1999 – 4066 mm in stappen van 1 mm
  • B × H in elke combinatie

Technische informatie

Functie, Technische gegevens, Snelselectie, Bestekomschrijving, Bestelsleutel

  • Functie
  • Technische gegevens
  • Snelselectie
  • Bestekomschrijving
  • Bestelsleutel
JZ-HL, schematische weergave 00104313_0.
① Behuizing
② Contraroterende lamellen
③ Lamellenafdichting, langszijde
④ Aanslagprofiel met afdichting
⑤ Servomotor
⑥ Dwarsbalk
⑦ Buitenliggende aandrijfhendel


Functiebeschrijving

Jalouziekleppen met aandrijfhendel zijn gelijklopend of contraroterend gekoppeld.

De synchrone rotatiebeweging wordt via de aandrijfhendel op de individuele lamellen overgebracht door middel van een uitwendig hefboom mechanisme. Zelfs zeer grote afmetingen kunnen middels dit hefboom mechanisme veilig worden geopend en gesloten.

Contraroterende lamellen sluiten met verschillende hoeksnelheden, omdat een aandrijfhendel is geïntegreerd in de koppeling. Daardoor zijn de sluit eigenschappen beter en de lucht lekkagestromen lager wanneer de jalouzieklep gesloten is.

De draaimomenten voor het bedienen van de jalouziekleppen moeten zodanig zijn dat veilig sluiten en openen mogelijk is.

Om te sluiten moet voldoende koppel aanwezig zijn om de lamellen volledig tegen de afdichting te drukken.

Het openen vindt plaats zonder invloed van aerodynamische krachten

Bij het aanstromen van jalouziekleppen ontstaan op grond van aerodynamische krachten, onafhankelijk van de luchtrichting, een in de sluitrichting werkend draaimoment. Deze moeten bij het openen weer overwonnen worden. Bij welke klephoek α het grootste draaimoment noodzakelijk is, hangt af van de ventilator- resp. de installatiecurve.

Nominale grootten

200 × 180 mm – 2000 × 1995 mm

Bedrijfstemperatuur

0 – 100 °C


JZ-HL, minimaal draaimoment

H B [mm]
H 200 400 600 800 1000 1200 1400 1600 1800 2000
mm Nm

180 – 1995

10

10

10

10

10

10

10

10

10

10


Jalouziekleppen van staal en roestvast staal, vrije doorlaten

H B [mm]
H 200 400 600 800 1000 1200 1400 1600 1800 2000
mm

180 – 344

0,03

0,06

0,09

0,12

0,15

0,18

0,21

0,24

0,27

0,30

345 – 509

0,06

0,11

0,17

0,23

0,28

0,34

0,40

0,45

0,51

0,57

510 – 674

0,08

0,17

0,25

0,33

0,42

0,50

0,58

0,67

0,75

0,83

675 – 839

0,11

0,22

0,33

0,44

0,55

0,66

0,77

0,88

0,99

1,10

840 – 1004

0,14

0,27

0,41

0,55

0,69

0,82

0,96

1,10

1,23

1,37

1005 – 1169

0,16

0,33

0,49

0,66

0,82

0,98

1,15

1,31

1,47

1,64

1170 – 1334

0,19

0,38

0,57

0,76

0,95

1,14

1,33

1,52

1,72

1,91

1335 – 1499

0,22

0,43

0,65

0,87

1,09

1,30

1,52

1,74

1,96

2,17

1500 – 1664

0,24

0,49

0,73

0,98

1,22

1,47

1,71

1,95

2,20

2,44

1665 – 1829

0,27

0,54

0,81

1,08

1,36

1,63

1,90

2,17

2,44

2,71

1830 – 1994

0,30

0,60

0,89

1,19

1,49

1,79

2,08

2,38

2,68

2,98

1995

0,32

0,65

0,97

1,30

1,62

1,95

2,27

2,60

2,92

3,25

Tussenmaat serie: waarden tussen de breedtes interpoleren


Maximaal toegestane statische drukverschil bij gesloten jalouzieklep

Uitvoering B [mm]
Uitvoering 800 1000 1200 1400 1600 1800 2000
Uitvoering Δpst max
Uitvoering Pa

Basisuitvoering

2500

2000

1650

1400

1250

1100

1000

Messing lager (-M)

3000

2500

2200

1950

1750

1600

1500

RVS lager (-E)

3000

2500

2200

1950

1750

1600

1500

Versterkte lamellen (-M-V, -E-V)

3500

3000

2700

2500

2300

2100

2000


JZ-HL, geluidvermogen bij gesloten jalouzieklep

Δpst Oppervlakte [m²]
Δpst 0,14 0,2 0,4 0,6 0,8 1,2 2 4
Δpst LWA
Pa dB(A)

100

43

45

48

50

51

53

55

58

200

51

53

56

58

59

61

63

66

500

62

63

66

68

69

>70

>70

>70

1000

69

>70

>70

>70

>70

>70

>70

>70

1500

>70

>70

>70

>70

>70

>70

>70

>70

2000

>70

>70

>70

>70

>70

>70

>70

>70


De snelselectie geeft een goede indruk van de te verwachten geluiddruk en drukverschillen. Indicatieve tussenwaarden kunnen geïnterpoleerd worden. Voor exacte tussenwaarden en spectrumgegevens kunt u ons selectieprogramma Easy Product Finder gebruiken.

De geluidsvermogens LWAgelden voor jalouziekleppen met een oppervlak (B × H) van 1 m².

De drukverschillen gelden voor jalouziekleppen geïnstalleerd in een luchtkanaal (installatie type A).

JZ-LL, JZ-LL-A2, JZ-HL, drukverschil en geluidvermogen

v Klepstand α
v OPEN 20° 40° 60° 80°
v Δpst LWA Δpst LWA Δpst LWA Δpst LWA Δpst LWA
m/s Pa dB(A) Pa dB(A) Pa dB(A) Pa dB(A) Pa dB(A)

0,5

 <5

 <30

 <5

 <30

<5

7,5

22

34

250

63

1

 <5

<30

<5

<30

8

26

85

53

1000

83

2

<5

<30

<5

<30

30

46

345

73

>2000

>90

4

<5

41

10

44

120

65

1385

>90

>2000

>90

6

<5

52

24

56

270

77

>2000

>90

>2000

>90

8

10

60

42

64

480

85

>2000

>90

>2000

>90

10

14

67

65

70

750

>90

>2000

>90

>2000

>90


Jalouziekleppen in rechthoekige uitvoering voor luchthoeveelheids- en drukregeling en het luchtdicht sluiten van luchtkanalen en openingen in wanden en vloeren.

Functionerende eenheid, bestaande uit het huis, aerodynamische lamellen en de klepmechaniek.

Beide zijden geschikt voor aansluiten met luchtkanaalprofielen.

Klepstand is aan buitenzijde zichtbaar door zaagsnede in de assen.

Lekkage bij gesloten regelklep volgens EN 1751, klasse 4.

Luchtdichtheid van het huis volgens EN 1751, klasse C.

Speciale kenmerken

  • Aerodynamisch gevormde lamellen
  • Onderhoudsarm en robuuste constructie
  • Geen siliconen bevattende componenten
  • Naast de standaard afmetingen ook tussenliggende afmetingen verkrijgbaar

Materialen en afwerking

  • Behuizing en lamelen van verzinkt staal
  • Assen, aandrijfhendel en hefboom uit verzinkt staal
  • Langszijdige afdichting van lamellen van kunststof PP/PTV
  • P1: poedercoating, kleur volgens RAL Classic
  • PS: poedercoating, kleur volgens DB

Uitvoeringen

Kanaalaansluiting

  • Hoekboring aan beide zijden
  • G: Flensboring aan beide zijden


Lagerbussen

  • Kunststof lagerbussen, bedrijfstemperatuur 0 – 100 °C
  • M: Messing lagerbussen, bedrijfstemperatuur 0 – 100 °C
  • E: RVS lagerbussen, bedrijfstemperatuur 0 – 100 °C


Lamellen

Alleen voor jalouziekleppen van verzinkt staal met messing of RVS lagerbussen (JZ-...-M, JZ-...-E)

  • V: Versterkte lamellen

Technische gegevens

  • Nominale grootten: 200 × 180 mm – 2000 × 1995 mm
  • Bedrijfstemperatuur 0 – 100 °C

Selectiegegevens

  • V _______________________ [m³/h]
  • Δpst __________________ [Pa]

Stromingsgeluid

  • LPA _______________________ [dB(A)]

00225042_0

 Type
JZ-HL       Luchtdichte jalouzieklep, lekkage bij gesloten jalouzieklep volgens EN 1751, klasse 1 – 2

 Kanaalaansluiting
       Geen vermelding: aan beide zijde op de hoeken geboord
G       Flensboring aan beide zijden (hoekboring vervalt)

 Lagerbussen
       Geen vermelding: kunststof lagerbussen
M       Messing lagerbussen
E       RVS lagerbussen

 Uitvoering lamellen
       Alleen voor verzinkte jalouziekleppen met messing- of roestvast staal lagerbussen
V       Versterkte lamellen

 Bedieningszijde
       Geen vermelding: rechts
L       Links

 

Nominale grootte [mm]
       B × H
       B > 2000 = in de breedte gedeeld
       H > 1998 = in hoogte gedeeld

 Montageframe
       Geen opgaaf: zonder
ER       Met (Enkel kanaalaansluiting G)

Aanbouwdelen
       Geen opgaaf: zonder
Z04 – Z07       Vastzetinrichting
Z12 – Z51       Servomotoren
ZF01 – ZF15       Veerretourmotoren
Z60 – Z77       Pneumatische servomotoren
       Explosieveilige aandrijvingen
Z1EX, Z3EX Elektrisch
Z60EX – Z77EX Pneumatisch

Klepstand veiligheidsfunctie
       Uitsluitend veerretourmotoren en pneumatische aandrijvingen
NO       Spanningsloos/drukloos open
NC       Spanningsloos/drukloos dicht

 Oppervlak
       Geen vermelding: basisuitvoering
P1       Gepoedercoat, RAL Classic kleur opgeven.
PS       Gepoedercoat, DB kleur opgeven

       Glansgraad
       RAL 9010 50 %
       RAL 9006 30 %
       Alle andere RAL-kleuren 70 %
       

Bestelvoorbeeld: JZ-HL–G–M–V–L/1200×675/ER/ZF06/NC

Kanaalaansluiting

Flensboring aan beide zijden

Lagerbussen

Messing lagerbussen

Uitvoering lamellen

Versterkte lamellen

Bedieningszijde

Links

Nominale grootte

1200 × 675 mm

Montageframe

Met

Aanbouwdelen

Veerretourmotor, 20 Nm, 24 V AC/DC

Klepstand

Spanningsloos DICHT

Oppervlak

Basisuitvoering


 

Aanbouwdelen, Afmetingen en gewichten, Productdetails

  • Aanbouwdelen
  • Afmetingen en gewichten
  • Productdetails

Vastzetinrichting en eindschakelaar

Bestelsleuteldetail Betekenis Eindschakelaar Functie

Z04

Vastzetinrichting


Z05

Vastzetinrichting

1

Klepstand dicht

Z06

Vastzetinrichting

1

Klepstand open

Z07

Vastzetinrichting

2

Klepstanden DICHT en OPEN


Open-dicht servomotoren

Bestelsleuteldetail Betekenis Functie Voedingsspanning Draaimoment Hulpschakelaar

Z12

SM230A

–1-Draadsbesturing –2-Draadsbesturings (3-punts)

100 – 240 V AC

20 Nm

Z13

GM230A

–1-Draadsbesturing –2-Draadsbesturings (open-dicht)

100 – 240 V AC

40 Nm

Z14

SM24A

–1-Draadsbesturing –2-Draadsbesturings (3-punts)

24 V AC / DC

20 Nm

Z15

GM24A

–1-Draadsbesturing –2-Draadsbesturings (open-dicht)

24 V AC / DC

40 Nm

Z16

SM230A

–1-Draadsbesturing –2-Draadsbesturings (3-punts)

100 – 240 V AC

20 Nm

S2A

Z17

GM230A

–1-Draadsbesturing –2-Draadsbesturings (3-punts)

100 – 240 V AC

40 Nm

S2A

Z18

SM24A

–1-Draadsbesturing –2-Draadsbesturings (3-punts)

24 V AC / DC

20 Nm

S2A

Z19

GM24A

–1-Draadsbesturing –2-Draadsbesturings (3-punts)

24 V AC / DC

40 Nm

S2A

Z43

NM230A

–1-Draadsbesturing –2-Draadsbesturings (3-punts)

100 – 240 V AC

10 Nm

Z45

NM24A

–1-Draadsbesturing –2-Draadsbesturings (3-punts)

24 V AC / DC

10 Nm

Z47

NM230A

–1-Draadsbesturing –2-Draadsbesturings (3-punts)

100 – 240 V AC

10 Nm

S2A

Z49

NM24A

–1-Draadsbesturing –2-Draadsbesturings (3-punts)

24 V AC / DC

10 Nm

S2A


OPEN-DICHT servomotoren, snellopend

Bestelsleuteldetail Betekenis Functie Voedingsspanning Draaimoment Hulpschakelaar

ZS21

SMQ24A

–1-Draadsbesturing

24 V AC / DC

16 Nm

ZS22

SMQ24A

–1-Draadsbesturing

24 V AC / DC

16 Nm

S2A


Open-dicht servomotoren, veerretourmotoren

Bestelsleuteldetail Betekenis Functie Voedingsspanning Draaimoment Hulpschakelaar

ZF01

NF24A

voedingsspanning aan/uit

24 V AC / DC

10 Nm

ZF02

NFA

voedingsspanning aan/uit

24 – 240 V AC 24 – 125 V DC

10 Nm

ZF03

NF24A-S2

voedingsspanning aan/uit

24 V AC / DC

10 Nm

geïntegreerd

ZF04

NFA-S2

voedingsspanning aan/uit

24 – 240 V AC 24 – 125 V DC

10 Nm

geïntegreerd

ZF06

SF24A

voedingsspanning aan/uit

24 V AC / DC

20 Nm

ZF07

SFA

voedingsspanning aan/uit

24 – 240 V AC 24 – 125 V DC

20 Nm

ZF08

SF24A-S2

voedingsspanning aan/uit

24 V AC / DC

20 Nm

geïntegreerd

ZF09

SFA-S2

voedingsspanning aan/uit

24 – 240 V AC 24 – 125 V DC

20 Nm

geïntegreerd

ZF11

EF24A

voedingsspanning aan/uit

24 V AC / DC

30 Nm

ZF12

EF230A

voedingsspanning aan/uit

100 – 240 V AC

30 Nm

ZF13

EF24A-S2

voedingsspanning aan/uit

24 V AC / DC

30 Nm

geïntegreerd

ZF14

EF230A-S2

voedingsspanning aan/uit

100 – 240 V AC

30 Nm

geïntegreerd


Variabele servomotoren (modulerend)

Bestelsleuteldetail Betekenis Functie Voedingsspanning Draaimoment Hulpschakelaar

Z20

SM24A-SR

2 - 10 V DC 

24 V AC / DC

20 Nm

Z21

GM24A-SR

2 - 10 V DC 

24 V AC / DC

40 Nm

Z51

NM24A-SR

2 - 10 V DC 

24 V AC / DC

10 Nm


Variabele servomotoren (modulerend), veerretourmotoren

Bestelsleuteldetail Betekenis Functie Voedingsspanning Draaimoment Hulpschakelaar

ZF05

NF24A-SR

2 - 10 V DC 

24 V AC / DC

10 Nm

ZF10

SF24A-SR

2 - 10 V DC 

24 V AC / DC

20 Nm

ZF15

EF24A-SR

2 - 10 V DC 

24 V AC / DC

30 Nm


Pneumatisch dubbelwerkende servomotoren, incl. de explosieveilige

Bestelsleuteldetail Betekenis Klepstand veiligheidsfunctie Bedrijfsdruk Draaimoment bij 6 bar Eindschakelaar Magneetventiel
Betekenis Klepstand veiligheidsfunctie Bedrijfsdruk Draaimoment bij 6 bar Eindschakelaar Magneetventiel

Z60

Z60EX

DR030

1,2 – 6 bar

35 Nm

Z61

Z61EX

DR030

Spanningsloos dicht/open

1,2 – 6 bar

35 Nm

24 V DC

Z62

Z62EX

DR030

Spanningsloos dicht/open

1,2 – 6 bar

35 Nm

230 V AC

Z63

Z63EX

DR030

1,2 – 6 bar

35 Nm

2


Z64

Z64EX

DR030

Spanningsloos dicht/open

1,2 – 6 bar

35 Nm

2

24 V DC

Z65

Z65EX

DR030

Spanningsloos dicht/open

1,2 – 6 bar

35 Nm

2

230 V AC

Z66

Z66EX

DR060

1,2 – 6 bar

70 Nm


Z67

Z67EX

DR060

Spanningsloos dicht/open

1,2 – 6 bar

70 Nm

24 V DC

Z68

Z68EX

DR060

Spanningsloos dicht/open

1,2 – 6 bar

70 Nm

230 V AC

Z69

Z69EX

DR060

1,2 – 6 bar

70 Nm

2


Z70

Z70EX

DR060

Spanningsloos dicht/open

1,2 – 6 bar

70 Nm

2

24 V DC

Z71

Z71EX

DR060

Spanningsloos dicht/open

1,2 – 6 bar

70 Nm

2

230 V AC

① Standaard

② Explosieveilig (Alleen met messing of RVS lagerbussen)

Z60 – Z65, Z60EX – Z65EX: Bij 1,2 bar bedrijfsdruk alleen tot hoogte H < 1665 mm


Pneumatisch enkelwerkende servomotoren, incl. de explosieveilige

Bestelsleuteldetail Betekenis Klepstand veiligheidsfunctie Bedrijfsdruk Draaimoment bij 6 bar Eindschakelaar Magneetventiel
Betekenis Klepstand veiligheidsfunctie Bedrijfsdruk Draaimoment bij 6 bar Eindschakelaar Magneetventiel

Z72

Z72EX

SC060 SO060

Drukloos dicht/open

6 bar

30 Nm



Z73

Z73EX

SC060 SO060

Spanningsloos en drukloos dicht/open

6 bar

30 Nm


24 V DC

Z74

Z74EX

SC060 SO060

Spanningsloos en drukloos dicht/open

6 bar

30 Nm


230 V AC

Z75

Z75EX

SC060 SO060

Drukloos dicht/open

6 bar

30 Nm

2


Z76

Z76EX

SC060 SO060

Spanningsloos en drukloos dicht/open

6 bar

30 Nm

2

24 V DC

Z77

Z77EX

SC060 SO060

Spanningsloos en drukloos dicht/open

6 bar

30 Nm

2

230 V AC

① Standaard

② Explosieveilig (Alleen met messing of RVS lagerbussen)


Explosieveilige open-dicht servomotoren, veeretourmotoren

Bestelsleuteldetail Betekenis Functie Voedingsspanning Draaimoment Hulpschakelaar

Z1EX

ExMax15-SF

2-Draadsbesturing (3-punts)

24 – 240 V AC/DC

15 Nm

geïntegreerd

Z3EX

ExMax30-SF

2-Draadsbesturing (3-punts)

24 – 240 V AC/DC

30 Nm

geïntegreerd

Alleen met messing- of roestvaststalen lagerbussen


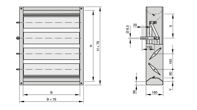
JZ, JZ-HL, standaard maten

H Aantal lamellen Plaats aandrijfas
H Aantal lamellen X Lamel
mm mm

180

1

90

1

345

2

90

1

510

3

90

1

675

4

255

2

840

5

420

3

1005

6

420

3

1170

7

585

4

1335

8

585

4

1500

9

750

5

1665

10

750

5

1830

11

915

6

1995

12

915

6


JZ, JZ-HL, tussenmaten

H Aantal lamellen Plaats aandrijfas Y
H Aantal lamellen X Lamel Y
mm mm mm

183 – 343

1

90

1

1,5 – 81,5

348 – 508

2

90

1

1,5 – 81,5

513 – 673

3

90

1

1,5 – 81,5

678 – 838

4

255

2

1,5 – 81,5

843 – 1003

5

420

3

1,5 – 81,5

1008 – 1168

6

420

3

1,5 – 81,5

1173 – 1333

7

585

4

1,5 – 81,5

1338 – 1498

8

585

4

1,5 – 81,5

1503 – 1663

9

750

5

1,5 – 81,5

1668 – 1828

10

750

5

1,5 – 81,5

1833 – 1993

11

915

6

1,5 – 81,5

1998

12

915

6

1,5


JZ, JZ-LL, JZ-HL, gewichten

H B [mm]
H 200 400 600 800 1000 1200 1400 1600 1800 2000
mm kg

180

4

6

8

9

11

13

14

16

18

19

345

6

8

10

12

15

17

19

21

24

26

510

7

10

13

16

19

22

25

27

30

33

675

10

13

16

20

23

27

30

33

37

40

840

11

15

19

23

28

32

37

41

46

50

1005

11

17

22

27

32

38

43

48

53

59

1170

13

19

25

31

37

43

49

55

61

67

1335

15

22

28

35

41

48

55

61

68

74

1500

16

23

30

37

44

51

59

66

73

80

1665

17

25

33

41

49

57

65

72

80

88

1830

18

27

35

44

52

61

69

78

86

95

1995

19

29

38

47

56

66

75

84

94

103


  • Uitvoeringen met flensboring (-G) hebben geen hoekboringen
  • Flensboring vanaf breedte 288 mm en hoogte 212 mm
  • Speciaal toebehoren voor aandrijfassen op aanvraag

Jalouziekleppen van staal en roestvaststaal, aantal flensboringen per zijde

B Aantal gaten
B n
mm

200 – 287

1

288 – 537

2

538 – 787

3

788 – 1037

4

1038 – 1287

5

1288 – 1537

6

1538 – 1787

7

1788 – 2000

8


Jalouziekleppen van staal en roestvaststaal, hoogte, aantal flensboringen per zijde

H Aantal gaten
H n
mm

180 – 211

1

212 – 461

2

462 – 711

3

712 – 961

4

962 – 1211

5

1212 – 1461

6

1462 – 1711

7

1712 – 1961

8

1962 – 1995

9


Schachtlengtes

Aandrijfas Jalouzieklep
Aandrijfas JZ-LL JZ-LL-A2 JZ-HL
Aandrijfas A
Aandrijfas mm

① Standaard

30

26

30

② Verlengd

250

180

250

③ Vierkant 9 mm

37

37

37

④ Vierkant 10 mm

70

60


Inbouwdetails, Kenmerken en definities

  • Inbouwdetails
  • Kenmerken en definities

Inbouw en inbedrijfname

  • Alleen met horizontaal liggende lamellen
  • Met of zonder inbouwraam
  • Torsievrij installeren
  • Breder dan 2000 mm of hoger dan 1995 mm, twee jalouziekleppen naast elkaar resp. boven elkaar toepassen
  • Alleen binnen toepassen

Breedte gedeeld, breedte

B1 B
mm mm

2550

1200

2950

1400

3350

1600

3750

1800

4150

2000


Hoogtegedeeld, hoogte

H1 H
mm mm

2086

1005

2416

1170

2746

1335

3076

1500

3406

1665

3736

1830

4066

1995


Hoofdafmetingen

B [mm]

Breedte van het luchtkanaal

H [mm]

Hoogte van het luchtkanaal

n [ ]

Aantal schroefgaten in flens

m [kg]

Gewicht van het product

Definities

LWA [dB(A)]

Geluidvermogenniveau stromingsgeluid van de jalouzieklep, A-gecorrigeerd.

α [°]

Klepstand, 0°: OPEN, 90°: DICHT

A [m²]

Aanstroomoppervlakte

v [m/s]

Luchtsnelheid op basis van aanstroomoppervlakte (B × H)

V [m³/h] en [l/s]

Luchthoeveelheid

Δpst [Pa]

Statisch drukverschil

Δpst max [Pa]

Maximaal toelaatbare statische drukverschil


Alle geluidsvermogens gebaseerd op 1 pW

Downloads

Productinformatie

Certificaten

production {"x-frame-options"=>"SAMEORIGIN", "x-xss-protection"=>"0", "x-content-type-options"=>"nosniff", "x-permitted-cross-domain-policies"=>"none", "referrer-policy"=>"strict-origin-when-cross-origin", "strict-transport-security"=>"max-age=31536000; includeSubDomains", "content-type"=>"text/html; charset=utf-8", "link"=>"</assets/application-efbc495b06ca980ef13dc743756002fce2f413f798fecb64c7f0c81954c16402.css>; rel=preload; as=style; nopush,</assets/print-fec2e47d6d8dcc5d4c101139f17046ba981ca1c12f71e7e403fba50cc7584175.css>; rel=preload; as=style; nopush,</assets/other_js/modernizr.custom.93544-c26374a79d804901074bb4aa6fd3fa44ea22e840389915d2adce16b024021ef3.js>; rel=preload; as=script; nopush,</assets/other_js/js.cookie.min-de103d86d1919b40950f791699b4ce768137fde41af09b35ff92bde369732183.js>; rel=preload; as=script; nopush,</assets/other_js/jquery-3.5.1-2c4ce18a1a3f144c333912efc24a76c9a165a0dba9f88a499985df1af0a196a2.js>; rel=preload; as=script; nopush"}

Deel deze pagina

Beveel deze pagina aan

U kunt deze pagina delen door de link te delen.

Velden met een ster (*) zijn verplichte velden.

Contact

Bedankt voor uw bericht!

Uw aanbeveling is verzonden naar de ontvanger.

Contact

Wij zijn er om u te helpen.

Wilt u het onderwerp van uw aanvraag en uw contactgegevens specificeren a.u.b.
Tel.: +32 (0) 2/522 07 80

Attachment (max. 10MB)

Velden met een ster (*) zijn verplichte velden.

Contact

Bedankt voor uw bericht!

Uw aanvraag is door ons ontvangen en wordt behandeld.
Onze afdeling voor service-aanvragen zal op korte termijn contact met u opnemen.
Voor algemene vragen over producten en diensten kunt u ons ook bereiken op:
Tel.: +32 (0) 2/522 07 80

Contact

Wij zijn er om u te helpen.

Wilt u het onderwerp van uw aanvraag en uw contactgegevens specificeren a.u.b.
Tel.: +32 (0) 2/522 07 80

Attachment (max. 10MB)

Velden met een ster (*) zijn verplichte velden.

Contact

Bedankt voor uw bericht!

Uw aanvraag is door ons ontvangen en wordt behandeld.
Onze afdeling voor service-aanvragen zal op korte termijn contact met u opnemen.
Voor algemene vragen over producten en diensten kunt u ons ook bereiken op:
Tel.: +32 (0) 2/522 07 80