00132203_0
Jaloezieklep variant JZ-P-A2

Jalouziekleppen met servomotor

00132870_0
Contraroterende lamellen


00132875_0
Gelijklopende lamellen


00132203_0
00132870_0
00132875_0

JZ

Voor het inregelen en afsluiten van luchtbehandelingsinstallaties

Jalouziekleppen voor luchthoeveelheids- en drukinregeling en het afsluiten van luchtkanalen en openingen in wanden en vloeren

  • Maximale afmetingen 2000 × 1995 mm
  • Lekkage van behuizing volgens EN 1751, klasse C
  • Gelijklopende of contraroterende, aerodynamische lamellen
  • Lamellen gekoppeld met buitenliggend stangenstelsel (gelijklopend of contraroterend)
  • Naast de standaard afmetingen ook tussenliggende afmetingen verkrijgbaar
  • Ook in combinatie met buitenluchtrooster


Optionele uitrusting en toebehoren

  • Servomotor: open-dicht aandrijving, proportionele aandrijving
  • Ex-uitvoering met pneumatische aandrijving of veerretourmotor
  • Gepoedercoate uitvoering

Toepassing

Toepassing

  • Jalouziekleppen van de serie JZ worden vooral toegepast in luchtbehandelingsinstallaties voor luchthoeveelheids- en drukregeling
  • Voor afsluiting van luchtleidingen en openingen in wanden en plafonds
  • Gelijklopende jalouziekleppen voor open-dicht toepassing
  • Contraroterende jalouziekleppen geschikt voor variabele instelling
  • RVS uitvoering en gepoedercoate uitvoering voor situaties waarbij een verhoogde weerstand tegen corrosie nodig is.
  • Voor toepassing in ruimten met explosiegevaar (ATEX). Uitvoeringen met messing of RVS bussen.

Speciale kenmerken

  • Aerodynamisch gevormde lamellen
  • Onderhoudsarm en robuuste constructie
  • Geen siliconen bevattende componenten
  • Naast de standaard afmetingen ook tussenliggende afmetingen verkrijgbaar

Nominale grootten

  • B: 200 – 2000 mm in stappen van 1 mm
  • Breedte gedeeld (BM) : 2001 – 4150 mm in stappen van 1 mm
  • H: 180, 345, 510, 675, 840, 1005, 1170, 1335, 1500, 1665, 1830, 1995 mm (Tussenmaten 183 – 1998 in stappen van 1 mm, behalve standaard maat H – 1 mm, H + 1 mm, H + 2 mm)
  • Hoogte gedeeld (HM): 1999 – 4066 mm in stappen van 1 mm
  • B × H in elke combinatie

Technische informatie

Functie, Technische gegevens, Snelselectie, Bestekomschrijving, Bestelsleutel

  • Functie
  • Technische gegevens
  • Snelselectie
  • Bestekomschrijving
  • Bestelsleutel

Functiebeschrijving

Jalouziekleppen met aandrijfhendel zijn gelijklopend of contraroterend gekoppeld.

De synchrone rotatiebeweging wordt via de aandrijfhendel op de individuele lamellen overgebracht door middel van een uitwendig hefboom mechanisme. Zelfs zeer grote afmetingen kunnen middels dit hefboom mechanisme veilig worden geopend en gesloten.

Contraroterende lamellen sluiten met verschillende hoeksnelheden, omdat een aandrijfhendel is geïntegreerd in de koppeling. Daardoor zijn de sluit eigenschappen beter en de lucht lekkagestromen lager wanneer de jalouzieklep gesloten is.

De draaimomenten voor het bedienen van de jalouziekleppen moeten zodanig zijn dat veilig sluiten en openen mogelijk is.

Om te sluiten moet voldoende koppel aanwezig zijn om de lamellen volledig tegen de afdichting te drukken.

Het openen vindt plaats zonder invloed van aerodynamische krachten

Bij het aanstromen van jalouziekleppen ontstaan op grond van aerodynamische krachten, onafhankelijk van de luchtrichting, een in de sluitrichting werkend draaimoment. Deze moeten bij het openen weer overwonnen worden. Bij welke klephoek α het grootste draaimoment noodzakelijk is, hangt af van de ventilator- resp. de installatiecurve.

Nominale grootten

200 × 180 mm – 2000 × 1995 mm

Bedrijfstemperatuur

–20 – 100 °C


JZ-*, JZ-*-A2, minimale draaimomenten

H B [mm]
H 200 400 600 800 1000 1200 1400 1600 1800 2000
mm Nm

180 – 1995

10

10

10

10

10

10

10

10

10

10


Jalouziekleppen van staal en roestvast staal, vrije doorlaten

H B [mm]
H 200 400 600 800 1000 1200 1400 1600 1800 2000
mm

180 – 344

0,03

0,06

0,09

0,12

0,15

0,18

0,21

0,24

0,27

0,30

345 – 509

0,06

0,11

0,17

0,23

0,28

0,34

0,40

0,45

0,51

0,57

510 – 674

0,08

0,17

0,25

0,33

0,42

0,50

0,58

0,67

0,75

0,83

675 – 839

0,11

0,22

0,33

0,44

0,55

0,66

0,77

0,88

0,99

1,10

840 – 1004

0,14

0,27

0,41

0,55

0,69

0,82

0,96

1,10

1,23

1,37

1005 – 1169

0,16

0,33

0,49

0,66

0,82

0,98

1,15

1,31

1,47

1,64

1170 – 1334

0,19

0,38

0,57

0,76

0,95

1,14

1,33

1,52

1,72

1,91

1335 – 1499

0,22

0,43

0,65

0,87

1,09

1,30

1,52

1,74

1,96

2,17

1500 – 1664

0,24

0,49

0,73

0,98

1,22

1,47

1,71

1,95

2,20

2,44

1665 – 1829

0,27

0,54

0,81

1,08

1,36

1,63

1,90

2,17

2,44

2,71

1830 – 1994

0,30

0,60

0,89

1,19

1,49

1,79

2,08

2,38

2,68

2,98

1995

0,32

0,65

0,97

1,30

1,62

1,95

2,27

2,60

2,92

3,25

Tussenmaat serie: waarden tussen de breedtes interpoleren


Maximaal toegestane statische drukverschil bij gesloten jalouzieklep

Uitvoering B [mm]
Uitvoering 800 1000 1200 1400 1600 1800 2000
Uitvoering Δpst max
Uitvoering Pa

Basisuitvoering

2500

2000

1650

1400

1250

1100

1000

Messing lager (-M)

3000

2500

2200

1950

1750

1600

1500

RVS lager (-E)

3000

2500

2200

1950

1750

1600

1500

Versterkte lamellen (-M-V, -E-V)

3500

3000

2700

2500

2300

2100

2000


JZ-S, JZ-S-A2, geluidvermogen bij gesloten jalouzieklep

Δpst Oppervlak B × H [m²]
Δpst 0,14 0,2 0,4 0,6 0,8 1,2 2 4
Δpst LWA
Pa dB(A)

100

57

58

61

63

64

66

68

71

200

63

65

68

69

71

72

75

77

500

71

72

76

78

79

81

83

84

1000

78

80

82

84

85

88

90

>90

1500

81

83

86

88

89

>90

>90

>90

2000

84

85

89

>90

>90

>90

>90

>90


JZ-P, JZ-P-A2, geluidvermogen bij gesloten jalouzieklep

Δpst Oppervlak B × H [m²]
Δpst 0,14 0,2 0,4 0,6 0,8 1,2 2 4
Δpst LWA
Pa dB(A)

100

57

58

61

63

64

64

68

71

200

63

65

68

69

71

71

75

78

500

71

72

76

78

79

79

85

87

1000

78

80

82

84

85

85

89

>90

1500

81

82

86

88

89

89

>90

>90

2000

84

86

89

>90

>90

>90

>90

>90


De snelselectie geeft een goede indruk van de te verwachten geluiddruk en drukverschillen. Indicatieve tussenwaarden kunnen geïnterpoleerd worden. Voor exacte tussenwaarden en spectrumgegevens kunt u ons selectieprogramma Easy Product Finder gebruiken.

De geluidsvermogens LWAgelden voor jalouziekleppen met een oppervlak (B × H) van 1 m².

De drukverschillen gelden voor jalouziekleppen geïnstalleerd in een luchtkanaal (installatie type A).

Selectievoorbeeld

Gegeven

Luchtkanaal B × H = 600 × 675 mm

Jalouzieklep JZ-S

Inbouwsituatie A

V = 2400 l/s (8640 m³/h)

Berekening

A = 0,600 × 0,675 = 0,405 m²

v = V ∕ A = 2400 ∕ 0,405 ( ∕ 1000) = 5,9 m/s

Snelselectie

ΔPst = <5 Pa

LWA = 55 dB(A)

JZ-S, JZ-S-A2, drukverschil en geluidvermogen

v Klepstand α
v OPEN 20° 40° 60° 80°
v Δpst LWA Δpst LWA Δpst LWA Δpst LWA Δpst LWA
m/s Pa dB(A) Pa dB(A) Pa dB(A) Pa dB(A) Pa dB(A)

0,5

<5

<30

<5

<30

<5

<30

22

44

255

67

1

<5

<30

<5

<30

8

38

85

59

1010

82

2

<5

31

<5

35

28

53

335

74

>2000

>90

4

<5

46

10

50

110

68

1395

89

>2000

>90

6

<5

55

22

59

250

77

>2000

>90

>2000

>90

8

8

61

40

65

440

83

>2000

>90

>2000

>90

10

14

66

60

70

690

88

>2000

>90

>2000

>90


JZ-P, JZ-P-A2, drukverschil en geluidvermogen

v Klepstand α
v OPEN 20° 40° 60° 80°
v Δpst LWA Δpst LWA Δpst LWA Δpst LWA Δpst LWA
m/s Pa dB(A) Pa dB(A) Pa dB(A) Pa dB(A) Pa dB(A)

0,5

<5

<30

 <5

<30 

<5

<30

<5

<30

12

42

1

<5

<30

<5

<30

<5

<30

12

40

45

60

2

<5

<30

<5

30

10

41

45

57

185

77

4

<5

41

6

48

40

58

170

75

750

>90

6

<5

51

14

58

85

69

385

85

1685

>90

8

<5

58

25

65

150

76

685

>90

>2000

>90

10

<5

64

40

71

230

81

1070

>90

>2000

>90


Jalouziekleppen in rechthoekige uitvoering voor luchthoeveelheids- en drukinregeling en het luchtdicht sluiten van luchtkanalen en openingen in wanden en vloeren.

Functionerende eenheid, bestaande uit het huis, aerodynamische lamellen en de klepmechaniek.

Beide zijden geschikt voor aansluiten met luchtkanaalprofielen.

Klepstand is aan buitenzijde zichtbaar door zaagsnede in de assen.

Luchtdichtheid van het huis volgens EN 1751, klasse C.

Speciale kenmerken

  • Aerodynamisch gevormde lamellen
  • Onderhoudsarm en robuuste constructie
  • Geen siliconen bevattende componenten
  • Naast de standaard afmetingen ook tussenliggende afmetingen verkrijgbaar

Materialen en afwerking

  • Behuizing en lamellen van verzinkt plaatstaal of roestvaststaal
  • Assen, aandrijfhendel en stangenstelsel van verzinkt staal of roestvaststaal
  • Lagerbussen van kunststof, messing of roestvaststaal
  • P1: poedercoating, kleur volgens RAL Classic
  • PS: poedercoating, kleur volgens DB

Uitvoeringen

Kanaalaansluiting

  • Hoekboring aan beide zijden
  • G: Flensboring aan beide zijden


Lagerbussen

  • Kunststof lagerbussen, bedrijfstemperatuur –20 – 100 °C
  • M: Messing lagerbussen, bedrijfstemperatuur –20 – 150 °C
  • E: RVS lagerbussen, bedrijfstemperatuur –20 – 150 °C


Lamellen

Alleen voor jalouziekleppen van verzinkt staal met messing of RVS lagerbussen (JZ-...-M, JZ-...-E)

  • V: Versterkte lamellen

Technische gegevens

  • Nominale grootten: 200 × 180 mm – 2000 × 1995 mm
  • Bedrijfstemperatuur: –20 – 100 °C

Selectiegegevens

  • V _______________________ [m³/h]
  • Δpst __________________ [Pa]

Stromingsgeluid

  • LPA _______________________ [dB(A)]

00225036_0

 Type
JZ       Jalouzieklep

Werking
S       Tegengesteld gekoppeld (standaard)
P       Gelijklopend (parallel)

 Materiaal
       Geen vermelding: staal verzinkt
A2       Roestvast staal

 Kanaalaansluiting
       Geen vermelding: aan beide zijde op de hoeken geboord
G       Flensboring aan beide zijden (hoekboring vervalt)

 Lagerbussen
       Geen vermelding: kunststof lagerbussen
M       Messing lagerbussen
E       RVS lagerbussen

 Uitvoering lamellen
       Alleen voor verzinkte jalouziekleppen met messing- of roestvast staal lagerbussen
V       Versterkte lamellen

 Bedieningszijde
       Geen vermelding: rechts
L       Links

 

 Nominale grootte [mm]
       B × H
       B > 2000 = in de breedte gedeeld
       H > 1998 = in hoogte gedeeld

 Montageframe
       Geen opgaaf: zonder
ER       Met (alleen uitvoering G)

 Aanbouwdelen
       Geen opgaaf: zonder
Z04 – Z07       Vastzetinrichting
Z12 – Z51       Servomotoren
ZF01 – ZF15       Veerretourmotoren
Z60 – Z77       Pneumatische servomotoren
       Explosieveilige aandrijvingen
Z1EX, Z3EX Elektrisch
Z60EX – Z77EX Pneumatisch

Klepstand veiligheidsfunctie
       Uitsluitend veerretourmotoren en pneumatische aandrijvingen
NO       Spanningsloos/drukloos open
NC       Spanningsloos/drukloos dicht

 Oppervlak
       Geen vermelding: basisuitvoering
P1       Gepoedercoat, RAL Classic kleur opgeven.
PS       Gepoedercoat, DB kleur opgeven

       Glansgraad
       RAL 9010 50 %
       RAL 9006 30 %
       Alle andere RAL-kleuren 70 %
       

Bestelvoorbeeld: JZ–S–G–M–V–L/800×510/ER/Z43

Werkingswijze

Tegengesteld gekoppeld

Materiaal

Verzinkt plaatstaal

Kanaalaansluiting

Flensboring aan beide zijden

Lagerbussen

Messing lagerbussen

Uitvoering lamellen

Versterkte lamellen

Bedieningszijde

Links

Nominale grootte

800 × 510 mm

Montageframe

Met

Aanbouwdelen

Servomotor, 10 Nm, 230 V AC, 3-punts

Oppervlak

Basisuitvoering


 

Uitvoeringen, Aanbouwdelen, Afmetingen en gewichten, Productdetails

  • Uitvoeringen
  • Aanbouwdelen
  • Afmetingen en gewichten
  • Productdetails

JZ-S

Uitvoering

  • Jalouziekleppen met tegengesteld gekoppelde lamellen van verzinkt staalplaat

Materialen en afwerking

  • Behuizing en lamelen van verzinkt staal
  • Assen, aandrijfhendel en hefboom uit verzinkt staal
  • Lagerbussen van kunststof
  • P1: poedercoating, kleur volgens RAL Classic
  • PS: poedercoating, kleur volgens DB

JZ-P

Uitvoering

  • Gelijklopende jalouziekleppen van verzinkt staalplaat

Materialen en afwerking

  • Behuizing en lamelen van verzinkt staal
  • Assen, aandrijfhendel en hefboom uit verzinkt staal
  • Lagerbussen van kunststof
  • P1: poedercoating, kleur volgens RAL Classic
  • PS: poedercoating, kleur volgens DB

JZ-S-A2

Uitvoering

  • Tegengesteld gekoppelde jalouziekleppen van roestvast staal

Materialen en afwerking

  • Behuizing, lamellen en aandrijfhendel van roestvast staal, materiaalnr. 1.4301
  • Assen van roestvast staal, materiaalnr. 1.4305
  • Gebeitst en gepassiveerd oppervlak
  • P1: poedercoating, kleur volgens RAL Classic
  • PS: poedercoating, kleur volgens DB

JZ-P-A2

Uitvoering

  • Gelijklopende jalouziekleppen van roestvast staal

Materialen en afwerking

  • Behuizing, lamellen en aandrijfhendel van roestvast staal, materiaalnr. 1.4301
  • Assen van roestvast staal, materiaalnr. 1.4305
  • Gebeitst en gepassiveerd oppervlak
  • P1: poedercoating, kleur volgens RAL Classic
  • PS: poedercoating, kleur volgens DB

Materialen

Bestelsleuteldetail Onderdeel Materiaal

Behuizing

Verzinkte staalplaat

Lamellen

Verzinkte staalplaat

Assen

Verzinkt staal

Aandrijfhendel

Verzinkt staal

Aandrijfhendel

Verzinkt staal

Lagerbussen

Kunststof

A2

Behuizing

Roestvast staal, materiaalnr. 1.4301

A2

Lamellen

Roestvast staal, materiaalnr. 1.4301

A2

Assen

Roestvast staal, materiaalnr. 1.4305

A2

Aandrijfhendel

Roestvast staal, materiaalnr. 1.4301

E

Lagerbussen

Roestvaststaal

M

Lagerbussen

Messing


Oppervlakken

Bestelsleuteldetail Onderdeel Oppervlak

Behuizing

onbehandeld

P1-RAL ...

Lamellen

Gepoedercoat, kleur RAL ... Classic

PS-DB ...

Lamellen

Gepoedercoat, kleur DB ...


Vastzetinrichting en eindschakelaar

Bestelsleuteldetail Betekenis Eindschakelaar Functie

Z04

Vastzetinrichting


Z05

Vastzetinrichting

1

Klepstand dicht

Z06

Vastzetinrichting

1

Klepstand open

Z07

Vastzetinrichting

2

Klepstanden DICHT en OPEN


Open-dicht servomotoren

Bestelsleuteldetail Betekenis Functie Voedingsspanning Draaimoment Hulpschakelaar

Z12

SM230A

–1-Draadsbesturing –2-Draadsbesturings (3-punts)

100 – 240 V AC

20 Nm

Z13

GM230A

–1-Draadsbesturing –2-Draadsbesturings (open-dicht)

100 – 240 V AC

40 Nm

Z14

SM24A

–1-Draadsbesturing –2-Draadsbesturings (3-punts)

24 V AC / DC

20 Nm

Z15

GM24A

–1-Draadsbesturing –2-Draadsbesturings (open-dicht)

24 V AC / DC

40 Nm

Z16

SM230A

–1-Draadsbesturing –2-Draadsbesturings (3-punts)

100 – 240 V AC

20 Nm

S2A

Z17

GM230A

–1-Draadsbesturing –2-Draadsbesturings (3-punts)

100 – 240 V AC

40 Nm

S2A

Z18

SM24A

–1-Draadsbesturing –2-Draadsbesturings (3-punts)

24 V AC / DC

20 Nm

S2A

Z19

GM24A

–1-Draadsbesturing –2-Draadsbesturings (3-punts)

24 V AC / DC

40 Nm

S2A

Z43

NM230A

–1-Draadsbesturing –2-Draadsbesturings (3-punts)

100 – 240 V AC

10 Nm

Z45

NM24A

–1-Draadsbesturing –2-Draadsbesturings (3-punts)

24 V AC / DC

10 Nm

Z47

NM230A

–1-Draadsbesturing –2-Draadsbesturings (3-punts)

100 – 240 V AC

10 Nm

S2A

Z49

NM24A

–1-Draadsbesturing –2-Draadsbesturings (3-punts)

24 V AC / DC

10 Nm

S2A


OPEN-DICHT servomotoren, snellopend

Bestelsleuteldetail Betekenis Functie Voedingsspanning Draaimoment Hulpschakelaar

ZS21

SMQ24A

–1-Draadsbesturing

24 V AC / DC

16 Nm

ZS22

SMQ24A

–1-Draadsbesturing

24 V AC / DC

16 Nm

S2A


Open-dicht servomotoren, veerretourmotoren

Bestelsleuteldetail Betekenis Functie Voedingsspanning Draaimoment Hulpschakelaar

ZF01

NF24A

voedingsspanning aan/uit

24 V AC / DC

10 Nm

ZF02

NFA

voedingsspanning aan/uit

24 – 240 V AC 24 – 125 V DC

10 Nm

ZF03

NF24A-S2

voedingsspanning aan/uit

24 V AC / DC

10 Nm

geïntegreerd

ZF04

NFA-S2

voedingsspanning aan/uit

24 – 240 V AC 24 – 125 V DC

10 Nm

geïntegreerd

ZF06

SF24A

voedingsspanning aan/uit

24 V AC / DC

20 Nm

ZF07

SFA

voedingsspanning aan/uit

24 – 240 V AC 24 – 125 V DC

20 Nm

ZF08

SF24A-S2

voedingsspanning aan/uit

24 V AC / DC

20 Nm

geïntegreerd

ZF09

SFA-S2

voedingsspanning aan/uit

24 – 240 V AC 24 – 125 V DC

20 Nm

geïntegreerd

ZF11

EF24A

voedingsspanning aan/uit

24 V AC / DC

30 Nm

ZF12

EF230A

voedingsspanning aan/uit

100 – 240 V AC

30 Nm

ZF13

EF24A-S2

voedingsspanning aan/uit

24 V AC / DC

30 Nm

geïntegreerd

ZF14

EF230A-S2

voedingsspanning aan/uit

100 – 240 V AC

30 Nm

geïntegreerd


Variabele servomotoren (modulerend)

Bestelsleuteldetail Betekenis Functie Voedingsspanning Draaimoment Hulpschakelaar

Z20

SM24A-SR

2 - 10 V DC 

24 V AC / DC

20 Nm

Z21

GM24A-SR

2 - 10 V DC 

24 V AC / DC

40 Nm

Z51

NM24A-SR

2 - 10 V DC 

24 V AC / DC

10 Nm


Variabele servomotoren (modulerend), veerretourmotoren

Bestelsleuteldetail Betekenis Functie Voedingsspanning Draaimoment Hulpschakelaar

ZF05

NF24A-SR

2 - 10 V DC 

24 V AC / DC

10 Nm

ZF10

SF24A-SR

2 - 10 V DC 

24 V AC / DC

20 Nm

ZF15

EF24A-SR

2 - 10 V DC 

24 V AC / DC

30 Nm


Pneumatisch dubbelwerkende servomotoren, incl. de explosieveilige

Bestelsleuteldetail Betekenis Klepstand veiligheidsfunctie Bedrijfsdruk Draaimoment bij 6 bar Eindschakelaar Magneetventiel
Betekenis Klepstand veiligheidsfunctie Bedrijfsdruk Draaimoment bij 6 bar Eindschakelaar Magneetventiel

Z60

Z60EX

DR030

1,2 – 6 bar

35 Nm

Z61

Z61EX

DR030

Spanningsloos dicht/open

1,2 – 6 bar

35 Nm

24 V DC

Z62

Z62EX

DR030

Spanningsloos dicht/open

1,2 – 6 bar

35 Nm

230 V AC

Z63

Z63EX

DR030

1,2 – 6 bar

35 Nm

2


Z64

Z64EX

DR030

Spanningsloos dicht/open

1,2 – 6 bar

35 Nm

2

24 V DC

Z65

Z65EX

DR030

Spanningsloos dicht/open

1,2 – 6 bar

35 Nm

2

230 V AC

Z66

Z66EX

DR060

1,2 – 6 bar

70 Nm


Z67

Z67EX

DR060

Spanningsloos dicht/open

1,2 – 6 bar

70 Nm

24 V DC

Z68

Z68EX

DR060

Spanningsloos dicht/open

1,2 – 6 bar

70 Nm

230 V AC

Z69

Z69EX

DR060

1,2 – 6 bar

70 Nm

2


Z70

Z70EX

DR060

Spanningsloos dicht/open

1,2 – 6 bar

70 Nm

2

24 V DC

Z71

Z71EX

DR060

Spanningsloos dicht/open

1,2 – 6 bar

70 Nm

2

230 V AC

① Standaard

② Explosieveilig (Alleen met messing of RVS lagerbussen)

Z60 – Z65, Z60EX – Z65EX: Bij 1,2 bar bedrijfsdruk alleen tot hoogte H < 1665 mm


Pneumatisch enkelwerkende servomotoren, incl. de explosieveilige

Bestelsleuteldetail Betekenis Klepstand veiligheidsfunctie Bedrijfsdruk Draaimoment bij 6 bar Eindschakelaar Magneetventiel
Betekenis Klepstand veiligheidsfunctie Bedrijfsdruk Draaimoment bij 6 bar Eindschakelaar Magneetventiel

Z72

Z72EX

SC060 SO060

Drukloos dicht/open

6 bar

30 Nm



Z73

Z73EX

SC060 SO060

Spanningsloos en drukloos dicht/open

6 bar

30 Nm


24 V DC

Z74

Z74EX

SC060 SO060

Spanningsloos en drukloos dicht/open

6 bar

30 Nm


230 V AC

Z75

Z75EX

SC060 SO060

Drukloos dicht/open

6 bar

30 Nm

2


Z76

Z76EX

SC060 SO060

Spanningsloos en drukloos dicht/open

6 bar

30 Nm

2

24 V DC

Z77

Z77EX

SC060 SO060

Spanningsloos en drukloos dicht/open

6 bar

30 Nm

2

230 V AC

① Standaard

② Explosieveilig (Alleen met messing of RVS lagerbussen)


Explosieveilige open-dicht servomotoren, veeretourmotoren

Bestelsleuteldetail Betekenis Functie Voedingsspanning Draaimoment Hulpschakelaar

Z1EX

ExMax15-SF

2-Draadsbesturing (3-punts)

24 – 240 V AC/DC

15 Nm

geïntegreerd

Z3EX

ExMax30-SF

2-Draadsbesturing (3-punts)

24 – 240 V AC/DC

30 Nm

geïntegreerd

Alleen met messing- of roestvaststalen lagerbussen


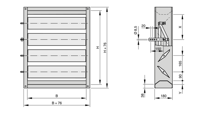
JZ, JZ-HL, standaard maten

H Aantal lamellen Plaats aandrijfas
H Aantal lamellen X Lamel
mm mm

180

1

90

1

345

2

90

1

510

3

90

1

675

4

255

2

840

5

420

3

1005

6

420

3

1170

7

585

4

1335

8

585

4

1500

9

750

5

1665

10

750

5

1830

11

915

6

1995

12

915

6


JZ, JZ-HL, tussenmaten

H Aantal lamellen Plaats aandrijfas Y
H Aantal lamellen X Lamel Y
mm mm mm

183 – 343

1

90

1

1,5 – 81,5

348 – 508

2

90

1

1,5 – 81,5

513 – 673

3

90

1

1,5 – 81,5

678 – 838

4

255

2

1,5 – 81,5

843 – 1003

5

420

3

1,5 – 81,5

1008 – 1168

6

420

3

1,5 – 81,5

1173 – 1333

7

585

4

1,5 – 81,5

1338 – 1498

8

585

4

1,5 – 81,5

1503 – 1663

9

750

5

1,5 – 81,5

1668 – 1828

10

750

5

1,5 – 81,5

1833 – 1993

11

915

6

1,5 – 81,5

1998

12

915

6

1,5


JZ, JZ-LL, JZ-HL, gewichten

H B [mm]
H 200 400 600 800 1000 1200 1400 1600 1800 2000
mm kg

180

4

6

8

9

11

13

14

16

18

19

345

6

8

10

12

15

17

19

21

24

26

510

7

10

13

16

19

22

25

27

30

33

675

10

13

16

20

23

27

30

33

37

40

840

11

15

19

23

28

32

37

41

46

50

1005

11

17

22

27

32

38

43

48

53

59

1170

13

19

25

31

37

43

49

55

61

67

1335

15

22

28

35

41

48

55

61

68

74

1500

16

23

30

37

44

51

59

66

73

80

1665

17

25

33

41

49

57

65

72

80

88

1830

18

27

35

44

52

61

69

78

86

95

1995

19

29

38

47

56

66

75

84

94

103


  • Uitvoeringen met flensboring (-G) hebben geen hoekboringen
  • Flensboring vanaf breedte 288 mm en hoogte 212 mm
  • Speciaal toebehoren voor aandrijfassen op aanvraag

Jalouziekleppen van staal en roestvaststaal, aantal flensboringen per zijde

B Aantal gaten
B n
mm

200 – 287

1

288 – 537

2

538 – 787

3

788 – 1037

4

1038 – 1287

5

1288 – 1537

6

1538 – 1787

7

1788 – 2000

8


Jalouziekleppen van staal en roestvaststaal, hoogte, aantal flensboringen per zijde

H Aantal gaten
H n
mm

180 – 211

1

212 – 461

2

462 – 711

3

712 – 961

4

962 – 1211

5

1212 – 1461

6

1462 – 1711

7

1712 – 1961

8

1962 – 1995

9


Schachtlengtes

Aandrijfas Jalouzieklep
Aandrijfas JZ-S JZ-P JZ-S-A2 JZ-P-A2
Aandrijfas A
Aandrijfas mm

① Standaard

32,5

32,5

32,5

32,5

② Verlengd

255

255

190

190

③ Vierkant 9 mm

38

38

45

45

④ Vierkant 10 mm

60

60


Inbouwdetails, Kenmerken en definities

  • Inbouwdetails
  • Kenmerken en definities

Inbouw en inbedrijfname

  • Alleen met horizontaal liggende lamellen
  • Met of zonder inbouwraam
  • Torsievrij installeren
  • Breder dan 2000 mm of hoger dan 1995 mm, twee jalouziekleppen naast elkaar resp. boven elkaar toepassen
  • Alleen binnen toepassen

Breedte gedeeld, breedte

B1 B
mm mm

2550

1200

2950

1400

3350

1600

3750

1800

4150

2000


Hoogtegedeeld, hoogte

H1 H
mm mm

2086

1005

2416

1170

2746

1335

3076

1500

3406

1665

3736

1830

4066

1995


Hoofdafmetingen

B [mm]

Breedte van het luchtkanaal

H [mm]

Hoogte van het luchtkanaal

n [ ]

Aantal schroefgaten in flens

m [kg]

Gewicht van het product

Definities

LWA [dB(A)]

Geluidvermogenniveau stromingsgeluid van de jalouzieklep, A-gecorrigeerd.

α [°]

Klepstand, 0°: OPEN, 90°: DICHT

A [m²]

Aanstroomoppervlakte

v [m/s]

Luchtsnelheid op basis van aanstroomoppervlakte (B × H)

V [m³/h] en [l/s]

Luchthoeveelheid

Δpst [Pa]

Statisch drukverschil

Δpst max [Pa]

Maximaal toelaatbare statische drukverschil


Alle geluidsvermogens gebaseerd op 1 pW

Downloads

Productinformatie

Certificaten

Referenties

Résidence Palace: zetel van de Europese Raad en de Raad van de Europese Unie

  • Résidence Palace: zetel van de Europese Raad en de Raad van de Europese Unie
  • Beschrijving
In juni 2011 werd begonnen met de werken aan de Résidence Palace in Brussel. Het gebouw aan de Wetstraat werd geherstructureerd en gerestaureerd zodat het vanaf het najaar van 2016 de zetel van de Europese Raad en van de Raad van de Europese Unie kon worden. In het gebouw worden vergaderzalen, kantoren, perslokalen, een restaurant en zalen voor officiële diners ondergebracht. Het gebouw heeft een bruto oppervlakte van ongeveer 71.000 m², waarvan ongeveer 18.000 m² behouden werd van de bestaande oppervlakte. TROX leverde voor het project onder andere geluidsdempers, debietregelaars en jalouziekleppen.

Van flatgebouw naar Raad van de EU

Het gebouw heeft een bewogen geschiedenis achter de rug en blijft evolueren. De bouw van de Résidence Palace vond plaats tussen 1922 en 1927 en werd uitgetekend door de Zwitserse architect Michel Polak. Het werd toen ingedeeld in verschillende kwartieren, waarin flats werden ondergebracht. Tijdens de Tweede Wereldoorlog werd het door de Duitsers bezet, nadien werd het achtergelaten en kon het niet meer heropleven.

De Belgische Staat kocht het gebouw in 1947 om er haar ambtenaren in onder te brengen. In 1953 werd een theater ingericht, maar dat werd in 1975 onbruikbaar verklaard, wegens de wettelijke voorschriften inzake brandbeveiliging. Na de renovatie in 1985 werd het een moderne schouwburg.

De belangrijkste aanpassingen aan het globaal buitenaanzicht van de Résidence Palace echter dateren van het einde van de jaren 60. Toen werd een nieuwe moderne gevel geplaatst om te voldoen aan de moderner wordende omgeving – door de komst van de Europese instellingen naar Brussel. Ook de capaciteit van het gebouw werd verdubbeld en er werd een ondergrondse parkeergarage gebouwd. 

In augustus 2004 schreef de Europese Raad met de hulp van de Regie der Gebouwen een Europese architectuurwedstrijd uit. Het totaalproject werd in september 2005 toegewezen aan de multidisciplinaire tijdelijke vereniging “Arch. & Ing.": Philippe Samyn and Partners, Studio Valle Progettazioni architects, Buro Happold Limited. Het ontwerp won in juni 2009 de speciale editie van de Green Good Design Award (uitgereikt door het “Chicago Atheaneum: Museum of Architecture and Design" en “The European Centre for Architecture Art Design and Urban Studies"). De prijs wordt uitgereikt aan uitzonderlijke individuen of bedrijven die, samen met hun producten, diensten, programma's, ideeën en concepten, uitzonderlijk denken en inspiratie hebben getoond voor een gezonder en duurzamer universum. De Regie der Gebouwen wees de opdracht voor de bouw van de nieuwe hoofdzetel toe aan de tijdelijke handelsvennootschap Interbuild NV en Cegelec NV op 11 juni 2010. 


De renovatie vanaf 2011

De vleugel van Blok A werd gerenoveerd en de uitbreidingen, daterend van de jaren 1960, werden gesloopt. Blok A werd uitgebreid met een glazen kubusvormig volume dat een ruim atrium vormt en wordt begrensd door een dubbele glazen wand. De buitenzijde hiervan bestaat uit een patchwork van ramen die uit alle landen van de EU afkomstig zijn. Het centrum van het gebouw wordt ingenomen door een soort van reusachtige lantaarn die de meest symbolische zalen van de instellingen bevat, waaronder verschillende vergaderzalen en een perszaal. Het gaat om een uniek concept, dat bij de juiste lichtinval 's avonds een mooi tafereel vormt.

Bij het opstellen van de plannen werd al snel het belang van een energiezuinige en performante HVAC-installatie duidelijk. Dat is waarom de ontwerpers een beroep deden op de TROX technologie om de rust in het gebouw te verzekeren. 

TROX technologie 
De akoestiek van de verschillende ruimtes wordt verzorgd door een combinatie van ronde geluidsdempers van het type CS in de ronde kanalen van het ventilatiesysteem en XSA- en MSA geluiddemperscoulissen voor de demping van ventilator- en stromingsgeluid. In ventilatiesystemen wordt namelijk geluid geproduceerd door verschillende bronnen zoals luchthoeveelheidsregelaars, ventilatoren of brandkleppen. Om aan een geluidseis te kunnen voldoen worden geluiddempers geplaatst op geschikte plaatsen in het ventilatiesysteem. De geluiddempers moeten passende dempingswaarden, laag drukverlies en zo klein mogelijke afmetingen hebben. 
Verder werden ook ronde mechanisch zelfwerkende regelaars van het type RN geïnstalleerd voor de toe- en afvoer van installaties met een constante luchthoeveelheid. Deze zijn een economische oplossing voor de regeling van constante luchthoeveelheden. Met de schaal op de regelaar wordt de gewenste luchthoeveelheid ingesteld. Omdat ze zonder hulpenergie functioneren, is ook geen bedrading nodig en de inbedrijfsname is eenvoudig. 
Naast de RN regelaars werden ook VAV-regelaars van het type TVJD-easy en TVRD-easy, voor variabele luchthoeveelheidsregeling, geïnstalleerd. Voor het meten van de luchthoeveelheid heeft de VAV-regelaar een drukverschilsensor. De gewenste waarde komt in de meeste toepassingen van een ruimtetemperatuurregelaar. Deze regelaar vergelijkt de werkelijke waarde met de gewenste waarde en verandert bij afwijkingen het stuursignaal voor de klepaandrijving. 
TROX leverde daarnaast vloerroosters aan van het type FBA. Dit zijn ronde aluminium vloerroosters die ontworpen zijn voor hoge belastingen en die door hun mogelijkheden aan oppervlaktestructuren en kleuren ook op esthetisch vlak een meerwaarde kunnen bieden. Belangrijke troeven zijn dat ze geen geluidshinder met zich meebrengen en dat de vloertegels met geïntegreerde roosters bij een eventuele herinrichting probleemloos verwisseld kunnen worden. Ze zorgen voor een goede vermenging van de aanwezige lucht. De personen in het gebouw zullen met andere woorden weinig tot niets merken van eventuele temperatuurverschillen. 
Andere TROX componenten in het Résidence Palace zijn onder meer JZ jalouziekleppen, CS geluiddempers en AK afsluitkleppen. 
Het project Résidence Palace was een bijzondere uitdaging voor TROX België. Niet alleen vanwege de complexe technische eisen, maar vooral omwille van de betekenis, de geschiedenis en de aard van het gebouw.

Project: Résidence Palace: zetel van de Europese Raad en de Raad van de Europese Unie
Locatie: Brussel
Gerealiseerd in: 2012 - 2016
Studiebureau: Régie des Bâtiments
Architect: Philippe Samyn and partners
Installateur : Cegelec
Producten: Geluidsdempers XSA, MSA, CS; Debietregelaars RN, AK, TVJD, TVRD; Jaloeziekleppen JZ; vloerroosters FBA
 
production {"x-frame-options"=>"SAMEORIGIN", "x-xss-protection"=>"0", "x-content-type-options"=>"nosniff", "x-permitted-cross-domain-policies"=>"none", "referrer-policy"=>"strict-origin-when-cross-origin", "strict-transport-security"=>"max-age=31536000; includeSubDomains", "content-type"=>"text/html; charset=utf-8", "link"=>"</assets/application-efbc495b06ca980ef13dc743756002fce2f413f798fecb64c7f0c81954c16402.css>; rel=preload; as=style; nopush,</assets/print-fec2e47d6d8dcc5d4c101139f17046ba981ca1c12f71e7e403fba50cc7584175.css>; rel=preload; as=style; nopush,</assets/other_js/modernizr.custom.93544-c26374a79d804901074bb4aa6fd3fa44ea22e840389915d2adce16b024021ef3.js>; rel=preload; as=script; nopush,</assets/other_js/js.cookie.min-de103d86d1919b40950f791699b4ce768137fde41af09b35ff92bde369732183.js>; rel=preload; as=script; nopush,</assets/other_js/jquery-3.5.1-2c4ce18a1a3f144c333912efc24a76c9a165a0dba9f88a499985df1af0a196a2.js>; rel=preload; as=script; nopush"}

Deel deze pagina

Beveel deze pagina aan

U kunt deze pagina delen door de link te delen.

Velden met een ster (*) zijn verplichte velden.

Contact

Bedankt voor uw bericht!

Uw aanbeveling is verzonden naar de ontvanger.

Contact

Wij zijn er om u te helpen.

Wilt u het onderwerp van uw aanvraag en uw contactgegevens specificeren a.u.b.
Tel.: +32 (0) 2/522 07 80

Attachment (max. 10MB)

Velden met een ster (*) zijn verplichte velden.

Contact

Bedankt voor uw bericht!

Uw aanvraag is door ons ontvangen en wordt behandeld.
Onze afdeling voor service-aanvragen zal op korte termijn contact met u opnemen.
Voor algemene vragen over producten en diensten kunt u ons ook bereiken op:
Tel.: +32 (0) 2/522 07 80

Contact

Wij zijn er om u te helpen.

Wilt u het onderwerp van uw aanvraag en uw contactgegevens specificeren a.u.b.
Tel.: +32 (0) 2/522 07 80

Attachment (max. 10MB)

Velden met een ster (*) zijn verplichte velden.

Contact

Bedankt voor uw bericht!

Uw aanvraag is door ons ontvangen en wordt behandeld.
Onze afdeling voor service-aanvragen zal op korte termijn contact met u opnemen.
Voor algemene vragen over producten en diensten kunt u ons ook bereiken op:
Tel.: +32 (0) 2/522 07 80